Vila individuala cu 5 camere, Domnesti-Centru
249.900,00 EUR
1.261.195,32 LEI

Ilfov, Centru, Domnesti.

Vila individuala cu 5 camere, Domnesti-Centru
Status: De actualitate
Tip imobil: Casa/Vila
ID: IMO 242
Tip tranzactie: Vanzare
Certificat energetic clasa: A
Etaj: P+M
Negociabil: Da
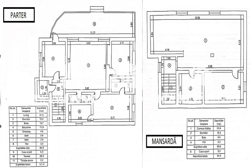
Nr. Camere: 5
Nr. Dormitoare: 3
Nr. Bai: 3
An constructie: 2021
Suprafata totala: 216 mp
Suprafata utila: 176 mp

Agenția imobiliară Nordimo Home Finders îți prezintă o oportunitate unică de a deveni proprietarul unei vile de excepție, situată în inima zonei noi din Domnești. Cu o amplasare privilegiată, la doar 10 minute de mers până la magazine și stația de autobuz, această proprietate te îmbie cu rafinament și confort la fiecare pas.

Cu o suprafață totală de teren de 344 de metri pătrați, această vilă impresionantă te întâmpină cu 5 camere decomandate, distribuite inteligent între parter și mansardă, oferindu-ți spațiul și intimitatea de care ai nevoie pentru a te bucura de fiecare colț al locuinței tale. Construită în anul 2021, această proprietate reprezintă epitomul modernității, beneficiind de îmbunătățiri de ultimă generație.

Cu o suprafață locuibilă de 216 metri pătrați, vila impresionează prin eleganță și atenție la detalii. Instalațiile electrice și sanitare sunt complet noi, asigurând confortul și siguranța locuinței tale. Ferestrele termopan permit luminii naturale să inunde fiecare încăpere, creând o atmosferă luminoasă și primitoare. Finisajele de calitate superioară, inclusiv gresia și parchetul, completează perfect designul contemporan al spațiului tău de trai.

O terasă generoasă și acoperită îți oferă posibilitatea de a te bucura de aerul curat și de priveliștea împrejurimilor în orice moment al zilei. Cu un teren liber, ai posibilitatea de a-ți crea propriul colț de relaxare în mijlocul naturii, departe de agitația urbană.

În plus, beneficiile acestei proprietăți nu se opresc aici. În vecinătate, vei găsi numeroase magazine și facilități, iar accesul ușor la transportul în comun îți oferă mobilitate și conexiuni rapide către restul orașului.

Această oază de confort și rafinament este oferită complet mobilată, pregătită să-ți întâmpine fiecare vis și aspirație în ceea ce privește un cămin perfect.

Nu rata șansa de a trăi într-o locuință de excepție! Prețul este de 249.900 Euro negociabil, reprezentând o investiție de durată în confortul și bunăstarea ta.

Pentru mai multe informații și pentru a programa o vizionare, nu ezita să ne contactezi la Nordimo Home Finders 0721373555. O echipă dedicată este pregătită să-ți ofere toate detaliile de care ai nevoie pentru a face această proprietate, căminul tău de vis!

Caracteristici:
Acces internet
Cablu Wireless
Alte spatii utile
Terasa WC Serviciu
Amenajare strazi
Asfaltate Pietruite Iluminat stradal Mijloace de transport in comun
Bucatarie
Mobilata Utilata
Climatizare
Aer conditionat
Contorizare
Contor gaz
Diverse
Scara interioara Senzor gaz
Dotari imobil
Acoperis Gradina Sistem de supraveghere video
Electronice/Electrocasnice
Masina de spalat vase Masina de spalat rufe Frigider Cuptor microunde Aragaz Hota TV Aspirator
Ferestre cu geam termopan
Aluminiu
Izolatii termice
Exterior
Mobilat
Complet
Pereti
Vopsea lavabila Faianta
Podele
Parchet Gresie
Servicii imobil
Supraveghere video
Sistem incalzire
Centrala proprie autonoma Calorifere
Stare interior
Buna
Usa intrare
Metal
Usi interior
Lemn
Utilitati generale
Curent Apa Gaz CATV
No reviews for house

Adauga Review
Titlu
Comentariu
Rating
Cere detalii

Agent imobiliar:

Cristina PISALTU

Licenta nr. 0764

Managing Partner

Carte de vizita

Logo telefon mobil 0721.373.555

Agent imobiliar Drumul Taberei, Cristina Pisaltu

Toate ofertele din portofoliu

Please past text to modal